Sobrado com 3 Quartos à Venda, 12.500 m² em Iririú - Joinville

Sobrado Venda

Iririú, Joinville

728000

Sobrado

Sobrado com 3 Quartos à Venda, 12.500 m² em Iririú - Joinville

Iririú, Joinville

728000

Visão Geral

Sobrado

Tipo de imóvel

3

Quartos

3

Banheiros

1

Suítes

12.50 m²

Metros quadrados

Descrição

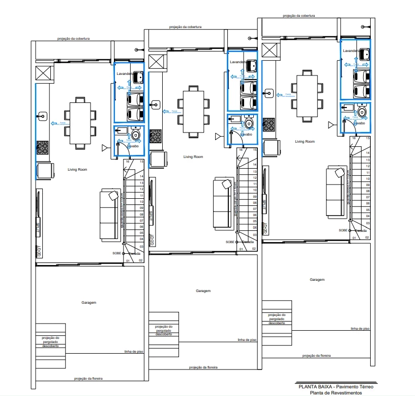
Unidade 01: Tem aproximadamente 4,66m de abertura (VENDIDO). Do final da garagem até início do terreno 6,70m e de Fundos 5,60m. Área Total: 126,08m²

Unidade 02: Tem aproximadamente 4,66m de abertura (DISPONIVEL). Do final da garagem até início do terreno 6,15m e de Fundos 6,25m. Área Total: 123,34m²

Unidade 03: Tem aproximadamente 4,68m de abertura (DISPONIVEL) - Do final da garagem até início do terreno 5,65m e de Fundos 6,90m. Área Total: 128,33m²

Elétrica subterrânea
Persianas elétricas
Esperas para gás
Entrega 12/25

Conferir é melhor que confiar, agende agora mesmo a sua visita e confira a tranquilidade e conforto que é morar nesta localização.

Mapa

Imóvel no Mapa

Endereço: Rua Ricardo Karmann, 000, Iririú - Joinville - SC - 89227440

Mostrar telefone

Código do imóvel: 002